Technische Daten
Belastbare Daten zur endgültigen technischen Dimensionierung des Nahwärmenetzes können erst im weiteren Verlauf der angelaufenen Planung veröffentlicht werden. An dieser Stelle werden die bisher durchgeführten Berechnungen vorgestellt, die auf den Annahmen gemäß den Karten unter dem Punkt Planungsgebiet basieren. Die Dimensionen werden sich durch die Rückmeldungen der Interessenten konkretisieren und hier aktualisiert dargestellt.
| Typ | Werte |
|---|---|
| Anzahl an kommunalen Gebäuden | 9 |
| dafür erforderliche Wärmemenge | ca. 2.000 MWhth/a |
| Anzahl an Gewerbetreibenden | 1 |
| dafür erforderliche Wärmemenge | ca. 2.700 MWhth/a |
| Anzahl an privaten Gebäuden | 120 |
| dafür erforderliche Wärmemenge | ca. 5.800 MWhth/a |
| Gesamtwärmemenge (inkl. Wärmeverluste) | ca. 10.500 MWhth/a |
| Erforderliche Wärmeleistung | ca. 4,5 MWth |
Das Nahwärmenetz ist für die Versorgung von insgesamt neun kommunalen und 120 privaten Gebäuden ausgelegt. Dazu kommt aktuell ein Gewerbebetrieb. Diese Angaben stellen eine grobe Schätzung dar und spiegeln keine aktuellen Anschlüsse wider, sondern potenzielle Anschlussmöglichkeiten. Für die kommunalen Gebäude wird ein jährlicher Wärmebedarf von ca. 2.000 MWhth angenommen, für das Gewerbeunternehmen 2.700 MWhth, während die privaten Gebäude etwa 5.800 MWhth pro Jahr benötigen.
Insgesamt ergibt sich somit ein geschätzter Wärmebedarf (inklusive Wärmeverluste) von ca. 10.500 MWhth pro Jahr. Die erforderliche Wärmeleistung beträgt voraussichtlich etwa 4,5 MWth. Die Trassenlänge des geplanten Nahwärmenetzes wird auf ca. 3,2 km geschätzt, was zu einer Wärmeliniendichte von ca. 2,3 MWh pro Meter führt.
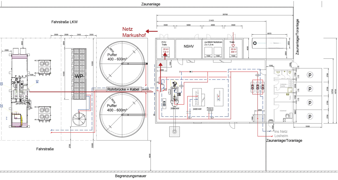
Aus der folgenden Abbildung können Sie die jeweiligen Komponenten des Wärmenetzes wie z.B. Wärmequellen mit ihren jeweiligen Werten ablesen.

Die Tabelle zeigt die technischen Spezifikationen der zentralen Komponenten eines Wärmesystems.
Mit einer thermischen Leistung von 2.896 kWth stellt das Blockheizkraftwerk (BHKW) einen wesentlichen Bestandteil zur Wärmeversorgung dar. Die Großwärmepumpe hat eine elektrische Leistung von 313 kWel und trägt zur effizienten Nutzung von elektrischer Energie für die Wärmeproduktion bei. Mit einer thermischen Leistung von 2.000 kWth bietet der Heizölkessel eine zusätzliche Möglichkeit zur Wärmebereitstellung da, die nur im Havariefall genutzt wird. Der Großwärmespeicher hat ein Volumen von 1.500 m³ und dient zur Zwischenspeicherung von Wärme, um Versorgungsschwankungen auszugleichen.
Diese Komponenten sind essenziell, um ein flexibles und effizientes Wärmesystem zu gewährleisten.
| Typ | Werte |
|---|---|
| Blockheizkraftwerk (BHKW) | 2.896 kWth |
| Großwärmepumpe | 313 kWel |
| Heizölkessel | 2.000 kWth |
| Großwärmespeicher | 1.500 m³ |
Aufstellplan der Energiezentrale


